Connect with us

Arkitekturë

ArchDaily shkruan për projektin e një shkolle në Tiranë

Published

on

ArchDaily ka vazhduar të shkruaj për projektet arkitekturore shqiptare. Kjo media e madhe e arkitekturës i ka dhënë vëmendje shkollës “Servet Maçi” në Trianë, transmeton Ndërtimi.info.

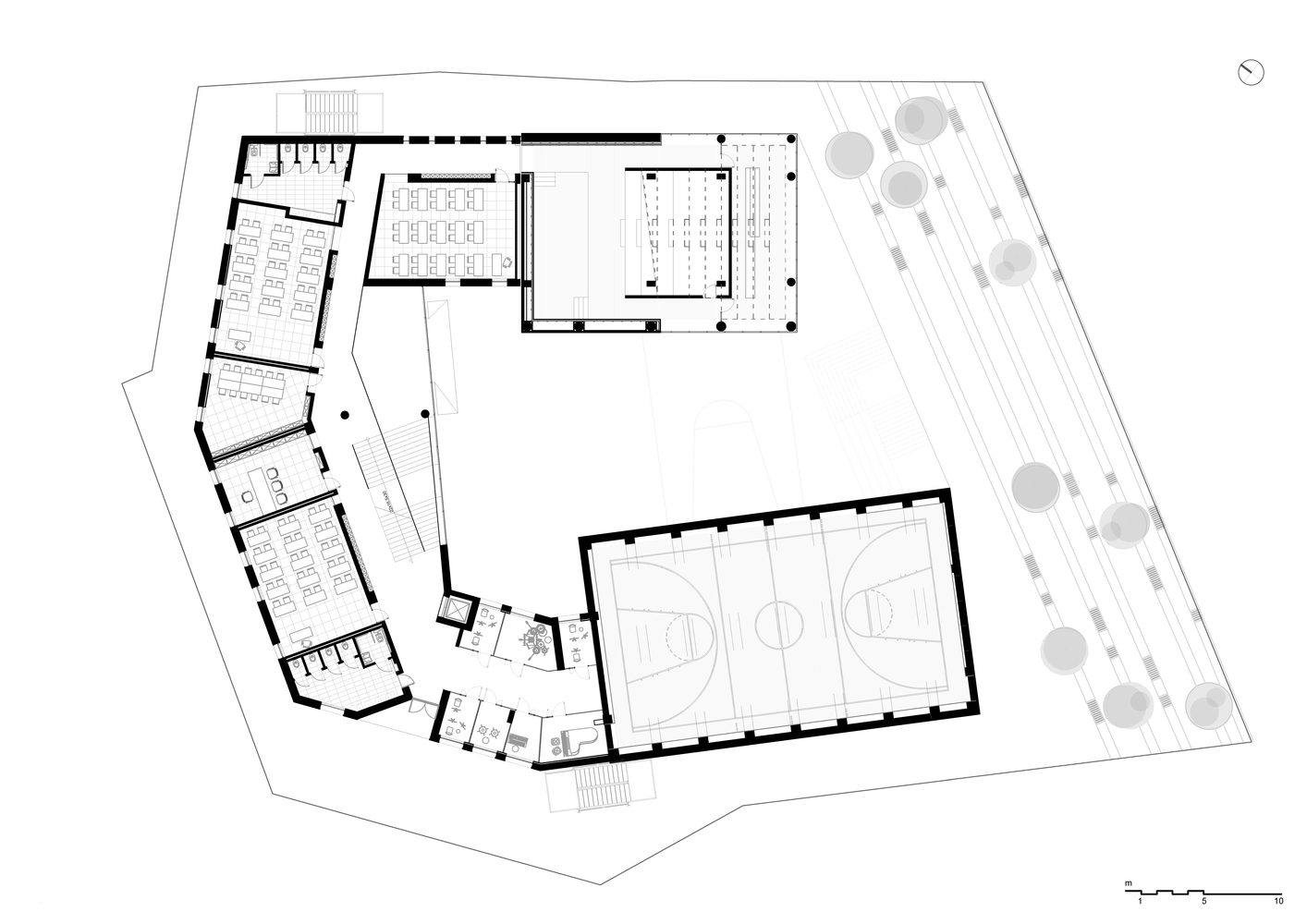
“Servete Maçi” është një shkollë e ciklit 9 vjeçar, e ndodhur në Tiranë – Shqipëri, një shkollë e re, në një zonë të dendur urbane pranë qendrës së kryeqytetit, e realizuar nga “Studioarch4”.  Përbëhet nga 18 klasa, 5 laboratore, palestër, sallë për 140 persona, Bibliotekë, 8 hapësira individuale për mësimin e veglave muzikore, hapësira administrative, hapësira teknike e sanitare. Gjithashtu një oborr të brendshëm dhe një të jashtëm që shërben si një hapësirë publike dinamike që bën hyrjen dhe daljen nga shkolla, një element të fortë që përdoret nga prindërit dhe nxënësit.

Gjithashtu kjo hapësirë publike krijon një tranzicion të butë midis rrugës dhe shkollës. Oborri i brendshëm nga ku është dhe hyrja kryesore e shkollës, është i zhytur 1 kat më poshtë se niveli i hapësirës publike. Në këtë mënyrë është i qetë dhe i sigurt për nxënësit. Aksesohet nga hapësira publike nëpërmjet shkallëve të jashtme, ku shërbejnë edhe si një auditor i hapur. I gjithë volumi i objektit vjen rreth e qark oborrit të brendshëm, duke u hapur nga jugu për ndriçim natyror optimal. Të gjitha klasat shohin drejt këtij oborri, duke e bërë mësimdhënien më të qetë. Në perimetrin e jashtëm të tij janë korridoret.

Objekti ka disa ballkone si dhe akses në tarracën e shfrytëzueshme, ku ofrohen këndshikime të ndryshme për një marrëdhënie të veçantë me kontekstin por edhe mes nxënësve. Shkallët qendrore të shkollës kanë një atrium që përshkon të gjithë objektin duke rritur interaktivitetin mes përdoruesve. Volumet më dinamike të shkollës, janë trajtuar me beton me ngjyrë, janë dhe funskionet pjesë e qendrës komunitare. Kështu biblioteka, palestra dhe auditori, i përkasin përvec shkollës, edhe komunitetit pas orarit mësimor zyrtar.

Duke u ndërthurur me hapësirën publike dhe oborrin e brendshëm, shkolla kthehet në një qendër komunitare e plotë pas orarit zyrtar të saj, me një përdorim të gjerë nga komunitetit i këtyre hapësirave që është edhe një nga pikat më të forta të këtij projekti.

Për të realizuar tranzicionin nga shkollë paradite, në qendër komunitare mbas dite, hapësirat ndahen në 3 kategori privatësie.

  1. Funksione tërësisht për shkollën, nxënësit dhe stafin e shkollës.
  2. Hapësira për shkollën por edhe për komunitetin.
  3. Hapësira tërësisht për komunitetin. Hapësira publike është një element shumë i rëndësishëm i procesit të hyrjes në një objekt. Projekti e trajton si një zonë që është totalisht e komunitetit por sigurisht nxënësit dhe prindërit do e përdorin në përditshmëri.

Fasada e objektit merr shikueshmërinë e merituar, ndërkohë që shkolla i largohet zhurmës së trafikut. Krijon sigurinë për fëmijët kur hyjnë dhe dalin nga shkolla në grupe dhe mund të jenë të shpërqendruar.

Materialet e përdorura në fasadë janë betoni i dukshëm, ku për volumet si palestra apo biblioteka, aplikohet me ngjyrues për ti dhënë shkollës ngjyrë dhe dinamizëm. Shtrimi i hapësirës publike është me beton të larë me agregat të dukshëm. Ndërkohë gjysmë fusha e jashtme e basketbollit, është me tartan, e ngjyrosur blu. /Ndërtimi.info/

Arkitekturë

Çfarë është arkitektura kinetike?

Published

on

Dizajni kinetik është bërë një pjesë thelbësore e zhvillimit arkitektonik, nga shpikja e urave të lëvizshme në Egjiptin e lashtë deri te dhomat rrotulluese në shtëpinë e Sharifi-ha. Megjithatë, si arritëm nga kjo në këtë? Për të kuptuar konceptin e arkitekturës kinetike, le të hedhim një vështrim më të thellë në origjinën e saj.

“Kinetic” rrjedh nga fjala greke kinētikos, që do të thotë “lidhur me lëvizjen muskulare”, ndërsa përkufizimi arkitektonik është koncepti “lejimi i pjesëve të një strukture të lëvizin, pa zvogëluar integritetin strukturor”. me fjalë të tjera, është arkitekturë në formën e një trupi në lëvizje.

Një nga format më të hershme të arkitekturës kinetike është tenda e beduinëve, e përdorur në Afrikën e lashtë. Kjo strukturë elastike ftohëse është e adaptueshme ndaj klimës së shkretëtirës dhe urës së lëvizshme, një mekanizëm mbrojtës i zhvilluar në Egjipt dhe më vonë i përdorur zakonisht në shekullin e 15-të.

Megjithatë, arkitektët filluan të pranojnë konceptin e Arkitekturës Kinetike vetëm në fillim të shekullit të 20-të. Shembuj janë vizatimet e Yakov Chernikhov në Fantazitë arkitekturore dhe koncepti i pandërtuar i Thomas Gaynor për Ndërtesën Rotary në 1908, megjithatë këto botime ishin ende thjesht teorike.

Një projekt që u ndërtua ishte Villa Girasole nga inxhinieri i Marinës Angelo Invernizzi. E ndërtuar në vitin 1935, ajo është një shtëpi rrotulluese që ndjek lëvizjen e diellit për të maksimizuar nxehtësinë dhe dritën në brendësi. Girasole, e cila në italisht përkthehet në Luledielli, ndodhet në një bazë rrethore me diametër 44 metra dhe është një vepër e jashtëzakonshme arkitekturore e ndërtuar gjatë epokave të arkitekturës funksionaliste dhe futuriste.

Më vonë në shekullin e 20-të, arkitektët e zhvendosën fokusin e tyre në arkitekturën kinetike. Teori të tilla si Manifesti i Arkitekturës Mobile të Yona Friedman dhe Planifikimi Hapësinor i Qytetit, Pallati i Argëtimit të Cedric Price dhe Qyteti Plug-in i Peter Cooke u botuan. Megjithatë koncepti i arkitekturës kinetike u prezantua për herë të parë në vitin 1970 nga William Zuk, i cili botoi librin Kinetic Architecture. Kjo tërhoqi më tej interesin për konceptin kinetik ndërsa u zhvilluan shkenca kompjuterike dhe teknologjitë e ndërtimit.

Shembuj të tjerë përfshijnë shtëpinë Sharifi-Ha, e cila siguron vëllime banimi që rrotullohen për t’u kthyer në tarraca në verë dhe mbyllen në dimër, dhe Muzeu i Artit Milwaukee, me mburojën e tij të lëvizshme të diellit, i përbërë nga 72 pendë çeliku që palosen dhe shpalosen. sipas kohës së ditës, dhe Kulla Al Bahar, me një fasadë që ndjek lëvizjen e diellit për të çuar panelet e tekstilit me fije qelqi në formë ylli të hapen dhe mbyllen, duke mbrojtur banorët nga nxehtësia dhe shkëlqimi diellor.

Ka shumë shembuj të tjerë që shfaqin mundësitë e pafundme të arkitekturës kinetike, por në fund të fundit, dizajni kinetik ka ndikuar në ndërtesa në parametra të tillë si koha, moti, energjia dhe nevojat njerëzore që nuk janë statike, por më tepër dinamike. Si rezultat, dizajni kinetik i lejon ndërtesat të zhvillojnë sisteme komplekse që u përgjigjen nevojave të tyre të veçanta./Media Ndërtimi

Continue Reading

Arkitekturë

Rizhvillimi “i shëmtuar” në Liverpool, fiton çmimin për ndërtesën më të keqe të Britanisë

Published

on

Rizhvillimi i Lime Street në Liverpool nga studio britanike Broadway Malyan është emëruar ndërtesa e re më e keqe në vend në Kupën Carbuncle të këtij viti.

Organizuar nga revista e Mbretërisë së Bashkuar The Fence, gjyqtarët zgjodhën rizhvillimin e Lime Street si “ndërtesën e re shumë të keqe në Britani”, që kur konkursi u zhvillua për herë të fundit në 2018.

“Që nga shikimi i parë, dy nga paneli ynë e kishin këtë si përzgjedhjen e tyre numër një, dhe ndërsa lista e gjatë u ngushtua në një listë të ngushtë, kjo pjesë e tmerrshme e fatkeqësisë arkitekturore vazhdoi të qëndronte jashtë,” tha The Fence në njoftimin e çmimit.

Përfunduar në vitin 2019, dizajni i rizhvillimit të Broadway Malyan përmban panele metalike të gdhendura që përfshijnë një fasadë të rrugës që çon nga stacioni i trenit Liverpool Lime Street.

Panelet e gdhendura përshkruajnë ndërtesat shekullore që u shkatërruan për t’i hapur rrugë rizhvillimit, i cili tani përmban një hotel dhe strehim studentësh.

I ringjallur nga The Fence për vitin 2024, Carbuncle Cup synon të identifikojë ndërtesat më të këqija të Mbretërisë së Bashkuar. Ajo u drejtua çdo vit midis 2006 dhe 2018 nga revista e arkitekturës Building Design (BD)./Media Ndërtimi

Continue Reading

Arkitekturë

Arkitektura e kontrollit: Peizazhet e çuditshme postmoderne të Koresë së Veriut

Published

on

Rrokaqiejt postmodern bashkëjetojnë me monumente socialiste në shtetin e izoluar. Shumë prej fotografive janë të publikuara nga Agjencia Qendrore Koreane e Lajmeve dhe nuk kanë datë se kur janë bërë.

Ndërtesat e larta e shumëngjyrëshe shihen përreth një monumenti të vjetër në Phenian në Korenë e Veriut, 11 shtator 2018, shkruan Radio Evropa e Lirë.

Pamje gjatë natës e distriktit Songhua në lindje të Phenianit, në Korenë e Veriut. Fotoja është publikuar nga Agjencia Qendrore Koreane e Lajmeve (KCNA), por nuk ka datë se kur është bërë.

Udhëheqësi i Koresë së Veriut, Kim Jong Un, gjatë një vizite në një zonë të zhvilluar banimi në rrethin Huaseong në Korenë e Veriut, në këtë foto të publikuar më 6 prill 2024 nga Agjencia Qendrore Koreane e Lajmeve, KCNA.

Pamje e përgjithshme gjatë ceremonisë së hapjes së Fermës së Serës Ryonpho për të shënuar përvjetorin e themelimit të Partisë së Punëtorëve në pushtet, në Korenë e Veriut, në këtë foto pa datë, e cila u publikua më 11 tetor 2022 nga KCNA-ja./Media Ndërtimi

Continue Reading

Trending